Schlüsselfertige Meerblick Villa SEA in Sutivan (Insel Brac) – 3 SZ + Bad, Pool, Sommerküche, …
21403 Sutivan, Villa zum Kauf




Objektbeschreibung
Beschreibung
In einem der schönsten Städtchen der Insel Brac erwarten Sie zwei luxuriöse Villen, die höchsten Ansprüchen gerecht werden. Die Villen Sea und Sun bieten eine hochwertige Ausstattung und sind komplett möbliert, bereit für Ihren Einzug. Jede Villa bietet aus jedem Zimmer einen atemberaubenden Blick auf das Meer und die Inseln Brac und Solta.
Traumhafte Lage
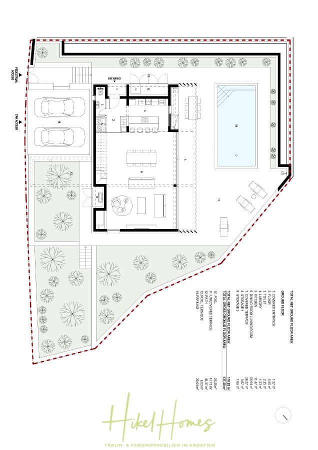
Diese Villen befinden sich in einer ruhigen Wohnlage in Hanglage mit Blick auf das Festland und Split. Direkt vor dem Haus stehen Ihnen zwei Stellplätze zur Verfügung. Über eine Treppe gelangen Sie zum Eingangsbereich, der mit einer imposanten Eingangstür beeindruckt. Diese Tür, 2,7 m hoch und 1,1 m breit, ist mit einem Fingerabdrucksensor ausgestattet, der für zusätzliche Sicherheit sorgt.
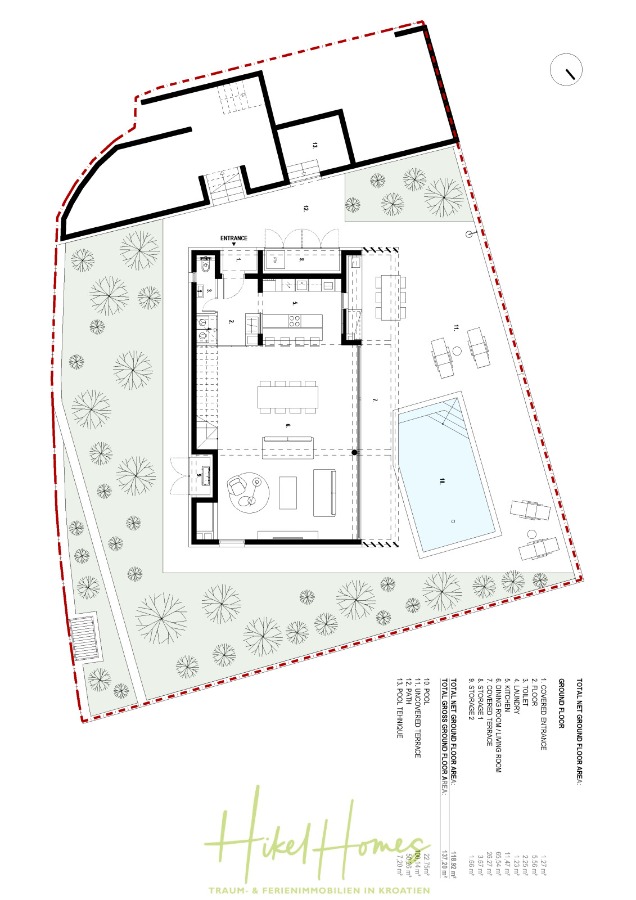
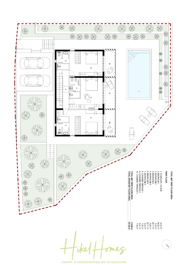
Raumaufteilung / Zimmer
- Erdgeschoss und Obergeschoss: Großzügige Flächen für ein komfortables Wohnen.
- 3 Schlafzimmer mit Bädern-en-Suite: Luxuriöse private Rückzugsorte.
- 1 Gäste-WC: Praktisch und elegant gestaltet.
- 2 Stellplätze: Bequeme Parkmöglichkeiten direkt vor der Tür.
- Sommerküche: Perfekt für entspannte Abende im Freien.
Luxuriöser Innenbereich
Beim Betreten der Villa gelangen Sie in einen großzügigen Eingangsbereich mit Garderobe und angrenzendem Gäste-WC. Der lichtdurchflutete Wohn- und Essbereich begeistert durch eine fast 10 m lange Fensterfront, die den Blick auf den Garten, den Pool und das Meer freigibt. Der Essbereich bietet Platz für einen großen Tisch und grenzt direkt an die offene Küche, die mit einer Kochinsel und einer Bar ausgestattet ist. Das Wohnzimmer bietet ausreichend Platz für ein großes Sofa und öffnet sich durch die riesige Fensterfront, die das Innere mit dem Außenbereich verschmelzen lässt.
Über eine offene Treppe gelangen Sie in das Obergeschoss, das drei großzügige Schlafzimmer beherbergt. Jedes Zimmer ist durch bodentiefe Fenster lichtdurchflutet und verfügt über ein eigenes Duschbad. Die Schlafzimmer bieten ausreichend Platz für Kleiderschränke, Schreib- und Schminktische und eignen sich auch hervorragend als Rückzugsort für berufliche Angelegenheiten. Jeder Raum führt auf einen Balkon, der zum Sonnen und Entspannen einlädt.
Hochwertige Ausstattung
Die Villen sind mit erstklassigen Designer-Materialien und komplett durchdachten Details ausgestattet:
- Großer, vollautomatischer Pool mit Wärmepumpen-Heizung: Genießen Sie das ganze Jahr über warmes Wasser.
- Elektrische Fußbodenheizung in allen Bädern: Komfort und Wärme auf Knopfdruck.
- Verdeckte Klima-/Heizungsanlage in allen Räumen: Angenehmes Raumklima zu jeder Jahreszeit.
- Elektrische Rollläden: Bequeme Steuerung und Schutz.
- SAT TV und WIFI in allen Räumen: Modernste Unterhaltung und Konnektivität.
- Angelegter Garten- und Außenanlagenbereich: Ein Paradies vor Ihrer Haustür.
- Fenster mit 3-fach Verglasung: Hervorragende Isolierung und Energieeffizienz.
Außenbereich
Vom Wohn-/Esszimmer aus erreichen Sie die großzügige Terrasse, die sich ideal zum Feiern und Relaxen eignet. Ein großer, vollautomatischer Pool mit Wärmepumpen-Heizung lädt zum Schwimmen ein.
Technische Ausstattung
Die Ausstattung umfasst modernste Heizungs-, Klima- und Solartechnik. Es wurden wichtige Zusatzelemente berücksichtigt, wie eine wasserführende Fußbodenheizung und die Möglichkeit, eine Wärmepumpe zur Heizung im Winter zu installieren. Zudem sind Vorbereitungen für Photovoltaik und eine Wallbox zum Laden von Elektrofahrzeugen getroffen.
Nutzen Sie die Gelegenheit und erfüllen Sie sich den Traum vom Eigenheim in einer der schönsten Regionen Kroatiens. Kontaktieren Sie uns für weitere Informationen oder einen Besichtigungstermin.
Ausstattung
RAUMAUFTEILUNG / ZIMMER:
- Erdgeschoss und Obergeschoss
- 3 Schlafzimmer mit Bädern-en-Suite
- 1 Gäste WC
- 2 Stepllplatze
- Sommerküche
HOCHWERTIGE AUSSTATTUNG:
- großer Pool mit Vollautomatik und Wärmepumpen-Heizung
- elektrische Fußbodenheizung in allen Bädern
- verdeckte Klima-/Heizungsanlage in allen Räumen
- elektrische Rollläden
- SAT TV
- WIFI in allen Räumen
- angelegter Garten- und Außenanlagenbereich
- Fenster 3-fach Verglasung
- Sanitärgegenstände Geberit und Hans Grohe
- Hauseingangstür aus Aluminiun 1,10 x 2,70 m mit Fingerprint
- Raumhöhe im Erdgeschoss 3,00 m, Obergeschoss 2,70 m
- Aluminium Fenster mit 3-fach Verglasung und innenliegenden Scharnieren
- Fassade mit 12 cm Dämmung mit Steinwolle
- Obergeschoss Schlafzimmerwände mit erhöhter Schallschutzanforderung
- Vorbereitet für Photovoltaik Anlage
- Vorbereitet für Wallbox zum laden von elektrischen Fahrzeugen
- Vorbereitet Fußbodenheizung in allen Räumen nur noch eine Wärmepumpe wird benötigt (Aufpreis ca. 10.000 EUR)
OPTIONAL:
- Hausverwaltung und Property Management
- Vermietungsservice
Sonstiges
FERTIGSTELLUNG
---------------------------------
SOFORT VERFÜGBAR
WEITERE INFORMATIONEN
-----------------------------
Sie benötigen weitere Informationen dann sprechen Sie uns an: [email protected]
Wir sprechen Deutsch, English, Français und Schwäbisch
BESICHTIGUNG
-----------------------------
Planen Sie Ihren Urlaub vor Ort und möchten das Objekt oder den Bauplatz LIVE Besichtigung? Kein Problem! sprechen Sie uns an. Wir bieten auch virtuelle Besichtigungen an. Somit bekommen Sie einen ersten Eindruck aus der ferne
MEHR SERVICE FÜR SIE
-----------------------------
- Komplette Betreuung vor Ort in deutscher Sprache
- Steuerberatung vor Ort
- Rechtsberatung vor Ort
- Bauträger vor Ort
- Handwerker Netzwerk
- Touristische Vermietung (wir kümmern uns um die komplette Vermietung)
- Hausverwaltung / Property Service
- Concierge Service vor Ort
Lage
Sutivan liegt auf der Insel Brac in Dalmatien an der adriatischen Küste. Der Flughafen auf der Insel wird sogar international angeflogen und der Ferienort ist deshalb besonders gut erreichbar. Der Tourismus auf Brac ist groß und das Angebot entsprechend auch. Sutivan selbst ist aber noch nicht so stark touristisch und deshalb beliebt bei Familien und andern ruhesuchenden Touristen. Sutivan verfügt über einen gut erhaltenen historischen Ortskern mit Parkanlagen und viel Grün. Die für die Region typischen Steinhäuser sind idyllisch in die malerische Küstenregion am glasklaren und tiefblau schimmernden Mittelmeer eingebettet. Der Hafen mit seinen Fischerbooten und kleinen Schiffen runden das Bild ab. Im Hafen gibt es hübsche Tavernen, einladende Kaffees und Bars, welche zum Verweilen und sich verwöhnen lassen einladen. Dort können lokale Speisen genossen werden und im Anschluss ein Schlummertrunk oder ein Spaziergang im romantisch angelegten Hafen genossen werden. Nicht nur im Hafen, sondern an der gesamten Uferpromenade gibt es ein großes Angebot an Restaurants und Gaststätten.
Direkt an der Promenade liegt der Strand von Sutivan. Der Kieselstrand lädt ein, einen entspannenden Tag am Meer zu verbringen und Abkühlung im kristallklaren Wasser des Mittelmeers zu suchen. In der Umgebung gibt es zahlreiche weitere Strände und Badeplätze und wer es etwa ruhiger mag, kann dorthin ausweichen.
Etwa zwei Kilometer entfernt liegt der Naturpark von Sutivan. Dort können exotische und einheimische Tiere beobachtet werden. Für die Kinder ist ein Besuch des Naturparks definitiv ein Highlight. Ein großer Spielplatz wartet auf die kleinen Gäste. Im Park gibt es sogar die Möglichkeit, Beachvolleyball zu spielen oder anderen sportlichen Aktivitäten nachzugehen. Ebenfalls verfügt der Park über ein großes Netz an Wanderwegen, welche eine willkommene Abwechslung bieten.
Ein weiteres, sehr zu empfehlendes Ausflugsziel ist die Ortschaft Bol, welche ebenfalls auf der Insel Brac liegt. Bol liegt am Fuße der Gebirgskette Bolska Kruna, wobei der höchste Berg 778 Meter über Meer liegt. Von dort oben genießt man eine fantastische Aussicht über die gesamte Küstenregion. Bol ist die älteste Stadt auf der Insel und verfügt über einige interessante historische Gebäude aus vergangenen Zeiten. Dazu gehört zum Beispiel das Dominikanerkloster, welches besucht werden kann und die damalige Zeit mit interessanten Ausstellungen aufzeigt. Der Ort ist bekannt für sein goldenes Horn, eine Landzunge, die 500 Meter ins Meer hinausragt und mit einem großen Pinienwald bedeckt ist. Eine weitere bekannte Sehenswürdigkeit ist die Drachenhöhle, die früher als Kirche genutzt wurde.
Meerblick
Entfernung zum Meer: 0,4km
%%3|3.75|1.0|0.5| |100|800%%
Meer 400 m
Die dargestellte Position der Immobilie ist nur eine ungefähre Angabe.
Objektdaten
-
ObjekttypenFerienimmobilie, Haus, Villa
-
Adresse21403 Sutivan
Dalmatien-Split -
LageWohngebiet
-
Wohnfläche ca.208 m²
-
Grundstück ca.576 m²
-
Zimmer5
-
Schlafzimmer3
-
Badezimmer3
-
Separate WC1
-
Balkon/Terrasse2
-
HeizungsartFußbodenheizung
-
Wesentliche EnergieträgerStrom, Solar, Luft/Wasser Wärmepumpe
-
UmgebungMeer: 0,4 km
-
Baujahr2024
-
Zustandneuwertig
-
AusstattungLuxus
-
BauweiseMassiv
-
AusbaustufeSchlüsselfertig mit Bodenplatte
-
Verfügbar abSofort Verfügbar
-
Carport:2 Stellplätze
-
ProvisionspflichtigJa
-
Käuferprovision3,75% vom Kaufpreis inkl. 25% MwSt.
-
Kaufpreis1.300.000 EUR
Ausstattung / Merkmale
- ✓ Als Ferienimmobilie geeignet
- ✓ Balkon/Terrasse
- ✓ Carport
- ✓ Dusche
- ✓ Klimatisiert
- ✓ Massivbauweise
- ✓ Meerblick
- ✓ Neubau
- ✓ Offene Küche
- ✓ Parkettboden
- ✓ Rollladen
- ✓ Schlüsselfertig mit Bodenplatte
- ✓ Separates WC
- ✓ Steinboden
- ✓ Tageslichtbad
- ✓ Wasch-/Trockenraum
Kaufnebenkosten (Beispiel)
-
-
Kaufpreis der Immobilie1.300.000,00 EUR
-
Grunderwerbsteuer (3,0%)39.000,00 EUR
-
Maklerprovision (3,75%)48.750,00 EUR
-
Rechtsanwalt (1,0%)13.000,00 EUR
-
Notar (0,5%)6.500,00 EUR
-
Nebenkosten107.250,00 EUR
-
Gesamtkosten1.407.250,00 EUR
